Monteringsveiledning Natre heve/skyvedør 


1. HÅNDTERING OG LAGRING AV HEVE/SKYVEDØR ETTER LEVERIN


All forflytning av heve/skyvedør bør skje i oppreist stilling med terskelen ned, og på en slik måte at man unngår skade på terskelen. Bruk gjerne korte stålrør til og rulle på, eller myke treklosser til og gli på. Døren MÅ lagres på et tørt sted, med god avstand til vått underlag. Plastemballasjen bør punkteres for å unngå kondens ved lengre tids lagring.



2. KLARGJØRING FOR MONTERING.



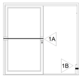
Figur 1) Oppakking
Fjern plastemballasje, kantbeskyttere (1A) og plastbåndet som holder skyvefeltet på plass i åpen stilling.

Åpne monteringspakningen (1B), som er tapet til sidekarmen på låsesiden. Heve/skyvedøren leveres standard med vrider/sylinderlås på innsiden, og gripeskilt på utsiden.

Ta ut vrideren og stikk firkantpinnen inn i låskassen, med vrideren pekende oppover. Drei vrideren slik at den peker nedover, dørbladet heises opp og kan skyves sidelengs. Vriderskilt monteres og skrus fast. Flytt deretter vrider til innsiden for montering.

KONTROLLER AT SKYVEFELTET STÅR RETT PÅ SKINNEN – JUSTÈR OM NØDVENDIG.

Dersom døren er ute av posisjon, senk døren og løft hjulgangen opp igjen på skinnen.



3. DEMONTERING AV SKYVEFELT



Figur 2) Styrekloss og styrelist
For og lette håndtering og innmontering i vegg, kan skyvefeltet demonteres. Ta ut skruene på styrelisten (2A) og fjern denne. Skyvefeltet vil nå kun være i inngrep på styreklossene i overkarmen (2B). Dra skyvefeltet til den ene siden og skru ut det antall styreklosser som er nødvendig for å frigjøre skyvefeltet.

NB! SIKRE AT SKYVEFELTET IKKE KAN FALLE UT, DET KAN VEIE OPP TIL 200KG.

Minst 1 styrekloss må være i inngrep når skyvefeltet står på skinnen, før feltet dras dit styreklossene er fjernet og løftes ut av karmen.

Skyvefeltet må ikke beveges mot underlaget etter at det er tatt ut av karmen. Vi anbefaler at det legges ned på bukker, eller stilles forsiktig inntil en vegg.

Ved innmontering av skyvefeltet igjen følges samme prosess. Pass på at hjulgangen treffer riktig på glideskinnen.



4. MONTERING I VEGG.



Figur 3) Klossing og festeskruer
Bestem plassering i veggen. Vi anbefaler at produktet trekkes inn i vegg, slik at sporet for sålebenkbeslaget flukter med vindsperresjiktet. Dette gir god understøttelse for døren.

Ved montering av sålebenkbeslaget skal sporet fuges.

Underlaget døren skal stå på må være helt plant og rett. Dette er svært viktig for dørens funksjon. Ujevnt underlag kan rettes med klosser under sidekarmene, og deretter med maksimalt 200mm mellomrom (se figur 3).
Kontroller terskel med rettholt, dersom terskelen ikke er plan vil døra ikke kunne treffe sidekarmen jevnt oppe/nede.

Overkarmen er IKKE bærende og må kun belastes rett over sidekarmene. Dersom overkarmen blir stående i press nedover vil dette kunne påvirke dørens funksjon.

Karmen klosses/kiles, rettes av og skrus fast i bindingsverket gjennom forborede hull. Skruer må ha godt feste/inngrep i stendere.

OBS! Når døren har aluminiumbekledning, må ikke denne være en del av tettesjiktet. Tetting må foretas mellom tredelen på dørens karm og veggen



For ytterligere informasjon om montering/tetting, henviser vi til SINTEF Byggforsk byggdetaljblad 523.721 Innsetting av ytterdører.



5. FERDIGMONTERING


Påse at døren fungerer tilfredsstillende FØR isolering/innlisting.   

Terskel må være plan, og sidekarmer justert slik at skyvefeltet har jevn avstand til karmen i både topp og bunn.


På midten av døra, mellom det faste feltet og skyvefeltet, finnes det 2 koblingsbeslag.  Om nødvendig kan disse justeres, slik at en alltid får jevnt pakningstrykk mellom skyvefelt og fastfelt ved lukking av døren. 


På tre dører følger det med dør stopper for skyvefelt som monteres på side karm på fast side cc 35mm fra ytterkant karm og på midten av ramme høyden.  Dører med aluminiumbekledning har dør stopper ferdig montert i over karm. 


Døren har lang låsebolt i sidekarmen, som gir mulighet for ventilasjonsspalte uten at døren er åpen.  

Av hensyn til vekt på døren, kan den være levert uten glass montert.


VI ANBEFALER AT GLASS, MEDSENDT I KASSE, MONTERES AV GLASSMESTER



Last ned PDF her: